


Welcome to Ikon Elevators ( Lifts ) , The Elevator & Escalator division of Ikon Group of Companies. We have established in year 1998. We have reached a long way and established a reputed on in market to provide branding Products & Services of superior quality, we have satisfactory supplied, erected, several lifts of Ikon make having trouble free maintenance. We are proud to have a team of trained and skilled technicians who are availed at the shortest possible time to meet the demand, emergency break down and to provide immediately services to our clients. After all “ Time is the most” important criteria in this field and we do our best to meet customer satisfaction at a very short notices.
We also in provide supply, erection, maintenance and up gradation services for equipments like escalators, Cranes, Special types Control Panel like AVR panel, DT gate panel. We also provide services for other reputed brands. In last 20 years Ikon has established itself as a fast growing company, as a reliable supplier and erection and maintenances’ of heavy equipments. We having more than 450+ establishments’ .Ikon is on right path as one of leading company in this region.
We are extremely proud of our long - standing relationships with clients, After all, we recognize that our reputation depends on our continuing ability to furnish superior trading services.
IKON Engineering & Electricals Pvt. Ltd. is pledged to provide service in a timely manner for we value our client's time and do strongly believe in "time is money". No wonder IKON E&E is serving a satisfied customer base of 400+ today.
Our Motto is to maintained consistency and standardization in every aspects. We offer you a Reliable, Attractive, Durable, Safe, Economic and Quality products suitable to your elevating. We posses rare combination of professional experience in all phases Electric, Electronic and Mechanical work.
Our Aim is to give best quality and trouble free service up to customer satisfactions. We ensure all components used are as per Indian Standards.
Elevator, Escalators & Hoist Mfg. & Trading
Maintenance Rennovation & Modernisation
Heavy Engineering Works
Deals in Energy Saving Systems
Deals in Back UP System
Customer Support System



Issued in a Public Interest
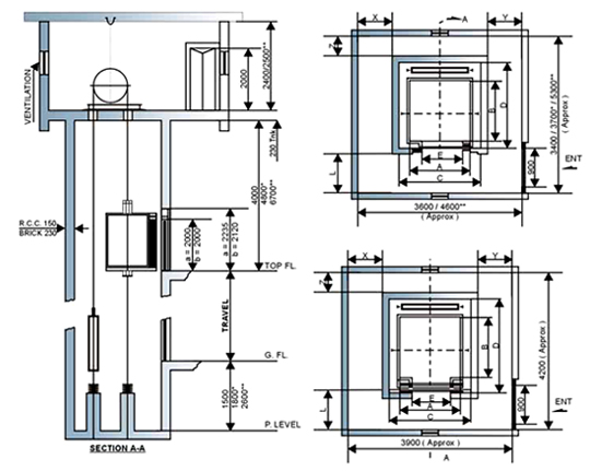
Care taken during Installation of Elevator ( Lifts )
How to test the lift after erection
Things to be checked in case the lift is not working
Remedies or what should be done if a person gets stuck in the elevator
When the lift stops between the floors:
If not possible:

Director